Moderna novogradnja u Crnici

Idealan dom uz Agenciju Palace: Prodaju se atraktivni trosobni stanovi

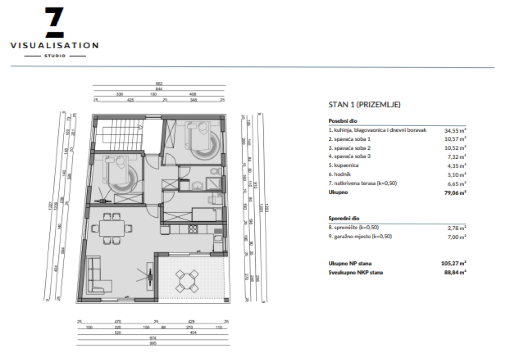
Agencija Palace u Šibeniku nudi bogat izbor nekretnina, a među njima danas izdvajaju dva moderna trosobna stana u novogradnji smještenoj u atraktivnom i mirnom naselju Crnica. Ovi prostrani stanovi savršen su izbor za obiteljski život ili investiciju, a završetak gradnje i useljenje predviđeni su za lipanj 2025. godine.
4 / 13
Oglas

Imaš vijest?

Imaš informaciju iz prve ruke, fotografiju, video, dobru ideju ili te nešto muči?

PODIJELI S NAMA!
Oglas
/ IZ KATEGORIJE
Oglas